Il primo passo 071.2905445
Italiano
217.000 €

Splendida casa bifamiliare ristrutturata con corte e garage a 10 km da Jesi
(Rif. 358SC-1) - Jesi

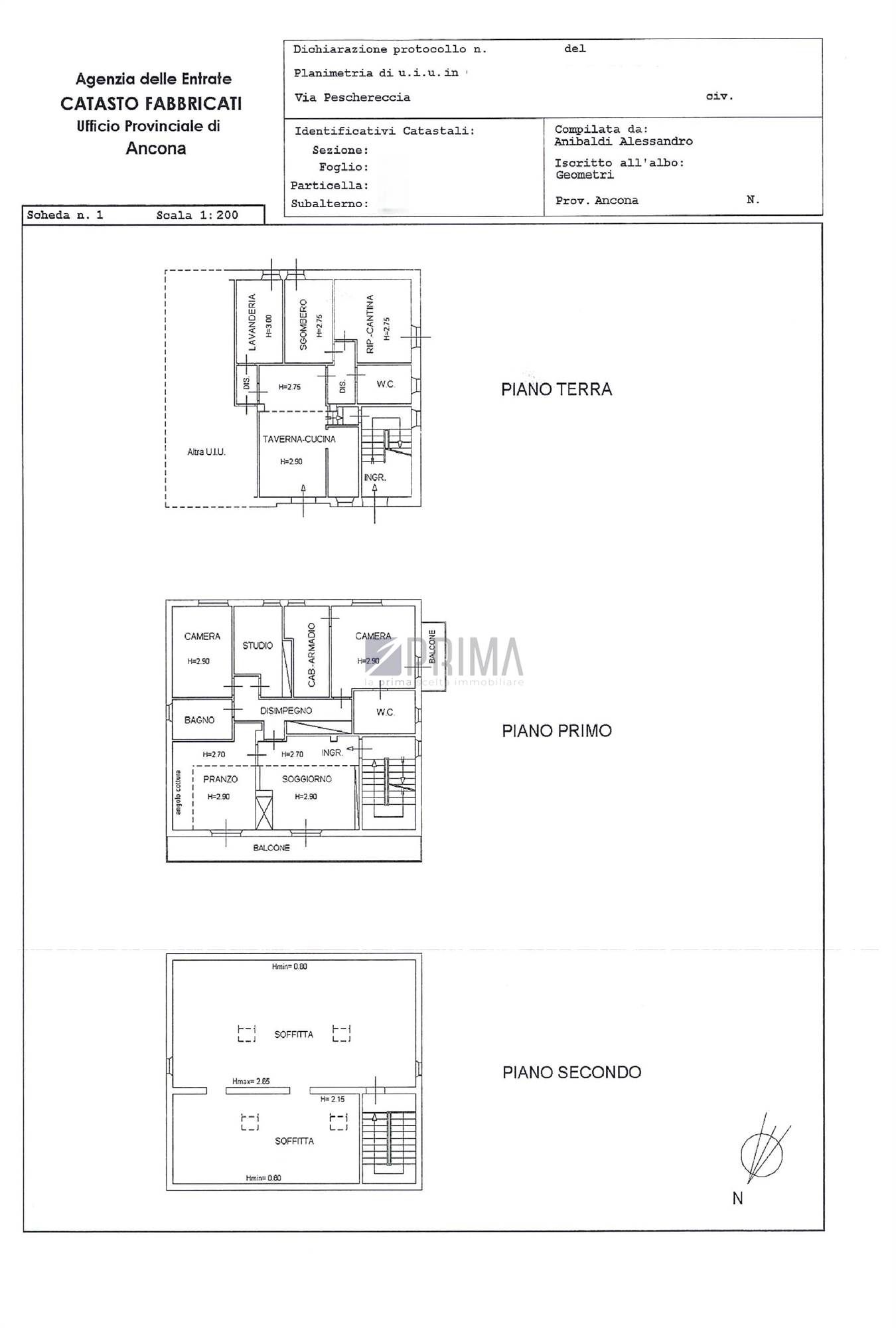
Rif. 358SC-1 A soli 10 km da Jesi, in una zona residenziale tranquilla e ben servita, proponiamo una splendida villa bifamiliare con corte privata di 300 mq, pensata per chi cerca spazio, comfort e versatilità.

La villa si sviluppa su due piani, con entrambe le unità ristrutturate nel 2015, e offre ambienti eleganti e luminosi:

Piano terra: taverna di 65 mq con ingresso indipendente, soggiorno con cucina a vista e camino, due camere, bagno e lavanderia – perfetta come abitazione separata o spazio multifunzionale.

Piano primo: appartamento di 105 mq con soggiorno con camino e balcone panoramico, cucina abitabile, camera padronale con bagno privato e cabina armadio, due camere aggiuntive e bagno con bagno turco, per un comfort davvero esclusivo.

Piano superiore: soffitta di 110 mq, ideale per creare un ulteriore appartamento, uno studio o uno spazio hobby personalizzato.

La proprietà include anche un garage di 35 mq con porta basculante elettrica e altezza di 3,5 metri, oltre a una corte esterna versatile, perfetta per parcheggi, aree verdi o momenti di relax all’aperto.

Una villa pronta da vivere, con ambienti ampi e funzionali, che unisce indipendenza, eleganza e grandi potenzialità, a pochi minuti da Jesi.
Il codice di riferimento è 358SC-1, contatta Prima Immobiliare per ulteriori dettagli.
Chiamaci subito al 0712905445 o scrivici a info@immobiliareprima.it
I nostri agenti sono a tua completa disposizione!
Caratteristiche principali
Codice
358SC-1
Città
Jesi
Categoria
Villa Bifamiliare
Prezzo
217.000 €
Locali
10,5
Camere
5
Bagni
3
Mq
264
Box
1
Mq Box
35
Mq Giardino
300
Balconi
2
Mq Balcone
15
Classe energetica
E
137,8
Stato Immobile
Ristrutturato
Grado
Medio
Posizione
Centro
Panorama
Vista Aperta
Orientamento
Nord Ovest Sud Est
Lati Liberi
4
Giardino
Privato
Arredi
Possibilità
Tipo Soggiorno
Soggiorno
Tipo Cucina
Abitabile
Riscaldamento
Autonomo
Tipo Riscaldam.
Caldaia
Tipo Impianto
Pavimento
Fonte Energetica
Metano
Acqua Calda
Autonoma
Raffrescamento
Predisposizione
Infissi
Metallo Doppio Vetro
Serramenti
Nuovo
Persiana
Tapparella PVC
Pavim. Giorno
Resina
Pavim. Notte
Resina
Pavim. Cucina
Resina
Pavim. Bagno
Resina
Pavimento
Resina

Accessori: Aria Condizionata, Camino, Doppi Vetri, Lavanderia, Porta Blindata, Ripostiglio, Zanzariere

Agenti venditori
Richiedi informazioni
Invia
Condividi su
Cookie preference