Il primo passo 071.2905445
Italiano
345.000 €

Jesi Attico signorile con terrazze in zona Verdi
(Rif. 395SC) - Jesi

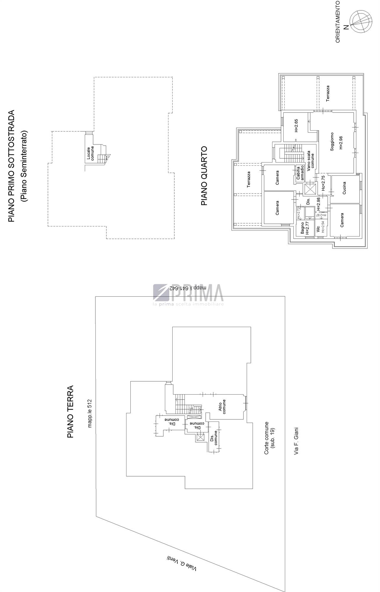
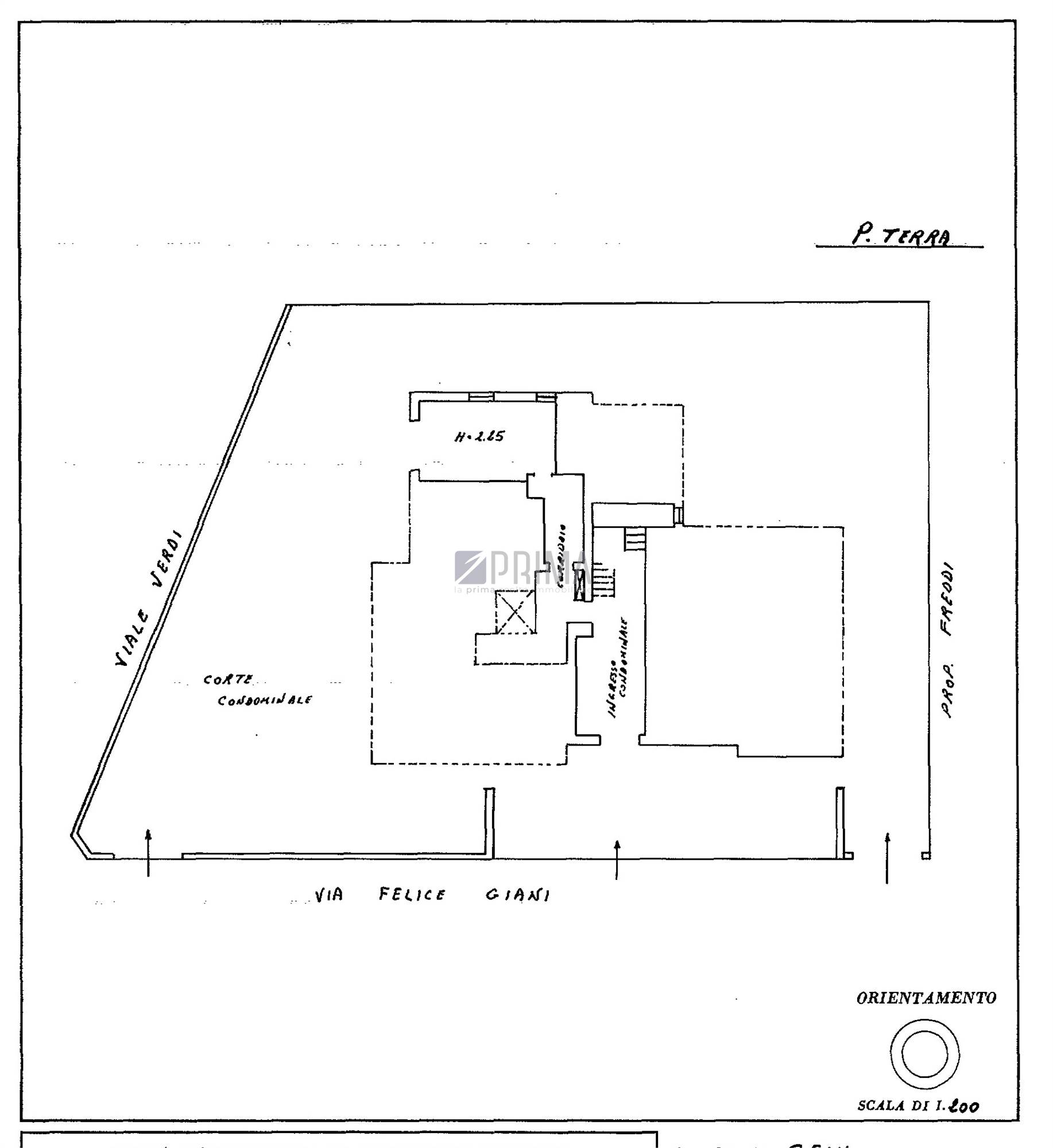
Rif.395SC A Jesi, in zona Verdi, elegante e raffinato attico al quarto piano di condominio da nove unità abitative, recentemente riqualificato esternamente e servito da ascensore. L'abitazione, di 171 mq, riqualificata da poco, si sviluppa tutta su un piano ed è circondata da terrazze e balconi. L'appartamento si apre su un luminoso salone doppio che si affaccia su una meravigliosa terrazza di circa 50 mq. Nella splendida terrazza panoramica si trova una tettoia ed un angolo barbecue. Proseguendo, troviamo una cucina abitabile, tre camere matrimoniali, di cui una con affaccio sulla seconda terrazza di 50 mq, e due raffinati bagni di cui uno con doccia "pass through". A piano terra, la proprietà si completa con un esclusivo box di 22 mq.

IMMOBILE CERTIFICATO: DOTATO DI DICHIARAZIONE DI CONFORMITA' URBANISTICA E CATASTALE

Se sei interessato a questo immobile il riferimento che lo identifica è 395SC, contatta l'agenzia immobiliare Prima RE srl di Ancona, indicando questo riferimento per avere tutte le informazioni che ti interessano.
Il nostro numero di telefono è 0712905445 oppure invia una mail a info@immobiliareprima.it
Caratteristiche principali
Codice
395SC
Città
Jesi
Categoria
Attico
Prezzo
345.000 €
Spese condominiali
1.800 € / anno
Locali
8,5
Camere
3
Bagni
2
Mq
207
Box
1
Mq Box
22
Balconi
1
Mq Balcone
35
Terrazzi
2
mq Terrazzo
105
Piano
4
Classe energetica
G
273,98
Stato Immobile
Ottimo
Grado
Signorile
Posizione
Centro
Panorama
Vista Aperta
Orientamento
Nord Ovest Sud Est
Lati Liberi
4
Tipo Soggiorno
Doppio
Tipo Cucina
Abitabile
Riscaldamento
Autonomo
Tipo Riscaldam.
Caldaia
Tipo Impianto
Radiatori
Fonte Energetica
Metano
Infissi
Alluminio
Serramenti
Ottimo
Persiana
Tapparella PVC
Pavim. Giorno
Parquet
Pavim. Notte
Parquet
Pavim. Cucina
Ceramica
Pavim. Bagno
Gres Porcellanato
Pavimento
Gres Porcellanato
Tipo Saracinesca
Manuale

Accessori: Ascensore, Doppi Vetri, Fibra Ottica, Porta Blindata, Rete Dati, Stufa a Pellet

Agenti venditori
Richiedi informazioni
Invia
Condividi su
Cookie preference