Il primo passo 071.2905445
Italiano
115.000 €

Complesso residenziale con tre unità, giardino esclusivo e ampi accessori
(Rif. 433SC) - Monsano

Rif.433SC Monsano Piazza Mazzini

Immagini modificate digitalmente per mostrare il potenziale dell'immobile

Nel cuore di Monsano si trova questo complesso immobiliare, da ristrutturare, immerso in un grande giardino privato di 1.000 mq che garantisce privacy e tranquillità.

Si tratta di un’occasione davvero interessante in centro, non solo per le generose dimensioni, ma anche per la straordinaria versatilità degli spazi che offre.

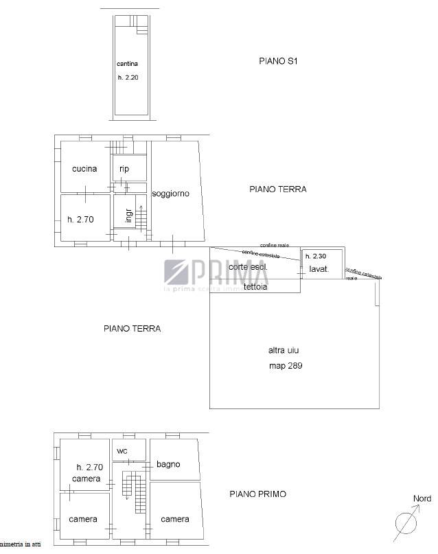
La proprietà si sviluppa su 421 mq abitativi, già suddivisi in tre unità distinte, ciascuna con caratteristiche e potenzialità diverse:

Al piano terra c’è un monolocale di 54 mq, ideale come piccolo appartamento indipendente, perfetto per un professionista, un familiare o come investimento da mettere a reddito.

Un secondo appartamento di 131 mq su due livelli offre una distribuzione funzionale degli ambienti, con una luminosa zona giorno e un balcone panoramico che regala affacci piacevoli e spazi confortevoli per tutta la famiglia.

La terza unità è la più ampia, con 236 mq su due livelli e ingresso indipendente. Al piano terra si trova un’ampia e luminosa zona giorno, ideale per vivere e accogliere, mentre al primo piano la zona notte dispone di un balcone e di spazi confortevoli per tutti.
Completano l’appartamento una cantina esclusiva al piano seminterrato e una lavanderia, rendendo la vita quotidiana pratica e funzionale.

La proprietà comprende anche due magazzini per un totale di 105 mq e un box auto di 32 mq, oltre al già citato giardino di 1.000 mq, perfetto per chi ama gli spazi esterni, per creare aree relax, giochi per bambini o semplicemente godersi il verde in centro.

Proprio grazie alla sua configurazione, questa soluzione si presta a diverse esigenze.

È ideale per un costruttore che voglia valorizzarla con un intervento mirato, ma è perfetta anche per una famiglia che desidera vivere vicina senza rinunciare alla propria indipendenza, come genitori e figli che vogliono spazi separati ma nello stesso contesto.

La combinazione di più unità, ampi accessori e grande giardino rende possibile creare ambienti personalizzati, con privacy e comfort per tutti.

Una proprietà che unisce dimensioni generose, flessibilità e potenzialità, rara da trovare in centro e pronta a soddisfare chi cerca spazi ampi, versatili e di valore.

Se sei interessato a questo immobile, il riferimento che lo identifica è il
433SC, contattaci indicando questo riferimento per avere tutte le informazioni che ti interessano.
Il nostro numero di telefono è 0712905445 oppure invia una mail a info@immobiliareprima.it i nostri agenti sono a tua completa disposizione.
Caratteristiche principali
Codice
433SC
Città
Monsano
Categoria
4 o più locali
Prezzo
115.000 €
Locali
17
Camere
7
Bagni
4
Mq
546
Box
1
Mq Box
32
Mq Giardino
1000
Balconi
2
Mq Balcone
6
Piano
Terra
Classe energetica
G
Stato Immobile
Da Ristrutturare
Grado
Medio
Posizione
Centro
Panorama
Vista Aperta
Orientamento
Sud Nord
Lati Liberi
2
Giardino
Privato
Mappa
PIAZZA GIUSEPPE MAZZINI 2, Monsano (AN)
Agenti venditori
Richiedi informazioni
Invia
Condividi su
Cookie preference